
Souffelweyersheim - T2 43.60 m² avec balcon, cellier et 2 parkings
Nouveauté !
€156000.00
Proposition d'aménagement virtuel non contractuel
Plan simplifié
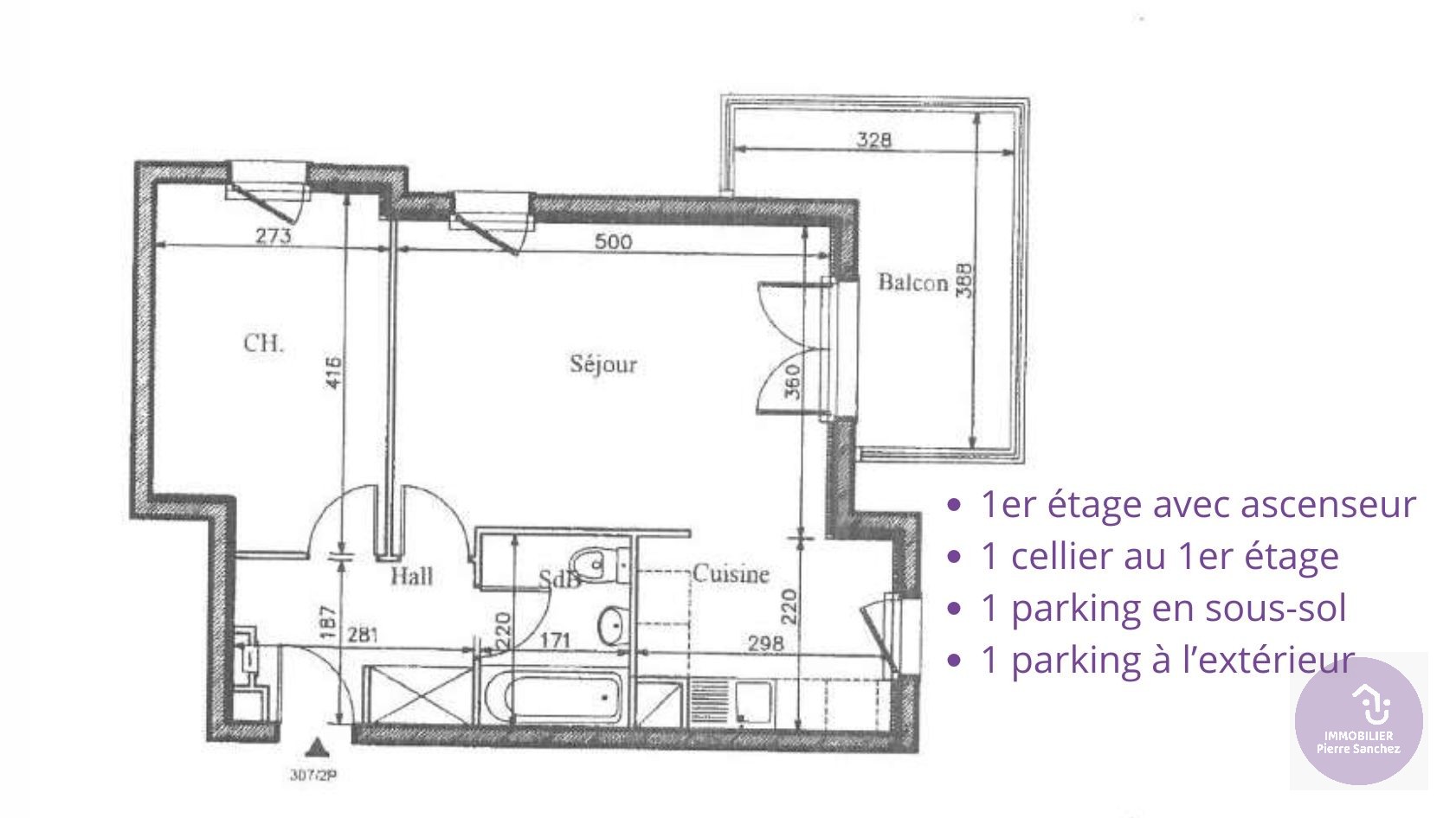
Au cœur de Souffelweyersheim, dans un immeuble achevé en 2008 bien entretenu avec ascenseur (18 logements), découvrez ce 2 pièces de 43,60 m² habitables, situé au 1er étage.
L’appartement se compose d’une entrée avec placard, d’une chambre de 10,71 m², d’une salle de bains avec toilettes et d’un séjour avec espace cuisine de 24,28 m².
Un balcon couvert de 8,64 m², accessible depuis le séjour, permet de profiter d’un espace extérieur confortable.
Le séjour - cuisine et le balcon bénéficie d'une double exposition EST et NORD.
En annexes :
un cellier privatif sur le même étage (avec prise électrique et éclairage),
une place de parking couverte en sous-sol (accessible par l’ascenseur),
une place de parking extérieure dans la cour.
Le bâtiment dispose d’un SAS d’entrée et d’espaces vélos collectifs au sous-sol. Le ravalement de façade a été réalisé en 2025.
L’appartement nécessite une modernisation intérieure (cuisine à aménager, salle de bains et sols à remettre au goût du jour), offrant ainsi un beau potentiel de personnalisation.
Chauffage collectif au gaz (chaudière à condensation) avec production d’eau chaude.
Ventilation mécanique contrôlée (VMC).
Volets roulants manuels.
Informations sur la copropriété
La copropriété est composée de 3 bâtiments, représentant un total de 53 logements (soit 135 lots en incluant les parkings et celliers).
Le bâtiment concerné comprend 18 logements.
Le décompte des charges pour la période du 01/07/2024 au 30/06/2025 s’élève à 3 373,04 €, incluant notamment :
chauffage,
eau chaude et eau froide,
entretien des parties communes et des extérieurs,
ascenseur,
charges générales de copropriété.
Performance énergétique
DPE : C – 107 kWh/m²/an
GES : C – 20 kg CO₂/m²/an
Montant estimé des dépenses annuelles d’énergie pour un usage standard : entre 410 € et 600 € par an.
Prix moyens des énergies indexés sur les années 2021, 2022 et 2023 (abonnements compris).
Fiscalité
Taxe foncière 2025 : 641 €, ordures ménagères incluses.
Un bien idéal pour un primo-accédant souhaitant réaliser son premier achat ou pour un investisseur recherchant un appartement fonctionnel avec stationnements, dans une commune dynamique aux portes de Strasbourg.
Pour plus d’informations ou organiser une visite, contactez-moi.
Les informations sur les risques auxquels ce bien est exposé sont disponibles sur le site www.georisques.gouv.fr.

